Aus dem Schifffahrtsmuseum Flensburg
Titelbild: Zeichnung der „Neumünster“, einem Schwesterschiff der „Fürth“, © mit freundlicher Genehmigung des Schifffahrtsmuseums Flensburg (Ref. BN_269). Ich weise ausdrücklich darauf hin, dass sämtliche Bildrechte beim Schifffahrtsmuseum Flensburg liegen und jegliche Nutzung dieses Bildes der Genehmigung des Rechteinhabers bedarf.
DigiPEER
Vor einiger Zeit hatte ich den Generalplan des Schiffes „Lübeck“ vorgestellt, der im Rahmen des Projektes DigiPEER digitalisiert worden war. SIEHE Das Projekt DigiPEER
DigiPEER war ein Projekt, ich zitiere, zur „Digitalisierung wertvoller Pläne und technischer Zeichnungen zur Erfassung und Erschließung des Raums im 20. Jahrhundert“.
Die „Lübeck“ war dem Schiff „Fürth“ sehr ähnlich: sie war auf der gleichen Werft ebenfalls für die Deutsch-Australische Dampfschiffs-Gesellschaft (DADG) gebaut worden, sie hatte eine ähnliche Größe und zwischen dem Bau beider Schiffe lagen gerade einmal sieben Jahre.
Die Pläne der „Reichenbach“ und der „Neumünster“
Die beiden heute gezeigten Pläne sind von Schwesterschiffen der „Fürth“ und haben daher Gültigkeit für die gesamte „Hagen-Klasse“, also die Schiffe „Hagen“, „Reichenbach“, „Plauen“, „Neumünster“, „Fürth“, „Osnabrück“ und schließlich „Hanau“.
Erhalten haben sich beide Pläne im Archiv des Schifffahrtsmuseums Flensburg, welches sie als Leihgabe von der Flensburger Schiffbau-Gesellschaft erhalten hat, der Werft, die in den Jahren 1906 und 1907 diese Schiffe für die DADG in Hamburg gebaut hatte.

Generalplan der „Reichenbach“, einem Schwesterschiff der „Fürth“, © mit freundlicher Genehmigung des Schifffahrtsmuseums Flensburg (Ref. FSG_267). Ich weise ausdrücklich darauf hin, dass sämtliche Bildrechte beim Schifffahrtsmuseum Flensburg liegen und jegliche Nutzung dieses Bildes der Genehmigung des Rechteinhabers bedarf.
Generalplan der „Reichenbach“
Eines der Dokumente ist der Generalplan des Schiffes S.D. „Reichenbach“. Das S.D. vor dem Namen steht für Schrauben-Dampfer.
Im oberen Teil des Planes sehen wir den Aufriss, also die seitliche Ansicht der „Reichenbach“. Darüber von links nach rechts eine Aufsicht auf das Bootsdeck, auf das Brückendeck und auf das kleine Peildeck.
Unter dem Aufriss sind zwei Aufsichten, die obere auf das Hauptdeck mit der davon abgesetzten Back (rechts im Bild )und die untere auf das Schottendeck mit dem offen liegenden Welldeck zwischen der Back und dem Hauptdeck.
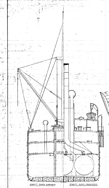
Links auf dem Plan befindet sich eine Schnittzeichnung. Diese ist zweigeteilt und zeigt links einen Schnitt durch den Laderaum und rechts einen Schnitt durch den Kesselraum.
Darunter ist eine Aufsicht auf das Zwischendeck beim Maschinen- bzw. Kesselschacht und ganz unten eine Aufsicht auf das Tanktop (die Tankdecke des Doppelbodens).

Zeichnung der „Neumünster“, einem Schwesterschiff der „Fürth“, © mit freundlicher Genehmigung des Schifffahrtsmuseums Flensburg (Ref. BN_269). Ich weise ausdrücklich darauf hin, dass sämtliche Bildrechte beim Schifffahrtsmuseum Flensburg liegen und jegliche Nutzung dieses Bildes der Genehmigung des Rechteinhabers bedarf.
Zeichnung der „Neumünster“
Die gleichen Ansichten wie für den Schraubendampfer „Reichenbach“ zeigt eine farbig angelegte Zeichnung des Schiffes „Neumünster“. Hier ist das Schiff im Aufriss oberhalb der Wasserlinie farbig angelegt, ebenso die verschiedenen Aufsichten und der Schnitt.
Diese farbige Zeichnung war von der Werft vielleicht für eine Präsentation des Schiffes beim Kunden, also bei der DADG angefertigt worden. Wenn Sie so wollen, quasi ein handkolorierter Vorläufer eines PowerPoints. Bei einem Verkaufspreis von rund 1,2 Millionen Mark konnte man durchaus einen Zeichner diese aufwändige Arbeit machen lassen.
Anmerkung: Die Baupreise der Hagen-Klasse lagen pro Schiff zwischen 1,158 Millionen für das günstigste (und älteste) und 1,285 Millionen Mark für das teuerste (und jüngste) der Schiffe (Quelle: Harms, 1933)
Über den Schiffbau
Der Schiffbau wird von Physik und Material bestimmt, aber auch durch regulatorische Rahmenbedingungen (Gesetzgebung, Vermessungsregeln, Vorschriften der Klassifikationsgesellschaften).
Beim Entwurf eines Handelsschiffes ist es wesentlich, die Hauptabmessungen und Völligkeitsgrade so zu wählen, daß das Schiff einerseits für seine Fortbewegung günstigste Form, also einen möglichst geringen Widerstand hat, andererseits aber auch genügend Tragfähigkeit und einen ausreichend nutzbaren Raum besitzt. Je nach der zu entwerfenden Schiffsgattung wird man z. B. beim Schnelldampfer größeren Wert auf schlanke Schiffslinien legen, beim langsamen Frachtschiff dagegen auf völlige Form, die einen guten Laderaum ergibt.
Quelle: Klassischer Schiffbau der Vorkriegszeit, Heinrich Herner, Salzwasserverlag; leicht abgeänderter Nachdruck des Originals (1926); abgerufen über books.google.fr
Der Schnitt durch Lade-/Kesselraum der „Reichenbach“ zeigt sehr schön die „völlige“ Form der Frachtdampfer der Hagen-Klasse, also die Optimierung der Schiffsform im Hinblick auf den Laderaum.

Generalplan der „Reichenbach“, Ausschnitt, © mit freundlicher Genehmigung des Schifffahrtsmuseums Flensburg (Ref. FSG_267)
Ein Kompromiss muss beim Schiffbau im Hinblick auf Stabilität und Gewicht gefunden werden:
Die wichtigste Aufgabe bei der Gestaltung der Schiffsverbände ist bei ausreichender Festigkeit einen möglichst leichten Schiffskörper zu erhalten. In den letzten Jahrzehnten sind in dieser Hinsicht sehr große Fortschritte gemacht worden, indem man die Bauteile in höchster Ausnutzung des Werkstoffes angeordnet hat.
Interessant ist, dass bereits bei Erscheinen des Buchs im Jahr 1926 die Überlegenheit der Schweißtechnik im Schiffbau bekannt war, diese sich aber erst nach dem Zweiten Weltkrieg durchsetzen konnte:
Ein weiterer Weg zur Gewichtsersparnis ist die umfangreiche Verwendung der Schweißung im Schiffbau, da ein vollständig geschweißtes Schiff hauptsächlich durch Fortfall von Winkelflanschen und Nietköpfen 25-30% leichter wird als ein genietetes.
Über das Nieten im Schiffbau hatte ich an Hand eines Fotos der „Fürth“ auf der Helling in Flensburg berichtet. Auf dem Foto sind auch Werftarbeiter an drei Nietkochern zu sehen. SIEHE: Die „Fürth“ auf der Helling
Der Schiffbau wurde weiters von den Sicherheitsvorschriften der Klassifikationsgesellschaften bestimmt. Die Gesellschaft Lloyd’s Register hatte ich hier vorgestellt: SIEHE Die „Fürth“ in Lloyd’s Register. Das deutsche Pendant dazu war der Germanische Lloyd, der unter anderem detaillierte Vorschriften über Klassifikation und Bau von stählernen Seeschiffen vorgab.
Die Gesetzgebung stellte Mindestanforderungen an Sicherheit und Arbeitsbedingungen an Bord. Als Beispiel sei genannt die Bekanntmachung, betreffend die Logis-, Wasch- und Baderäume sowie die Aborte für die Schiffsmannschaft auf Kauffahrteischiffen.
Der Schiffbau hatte sich auch an den nationalen und internationalen Vermessungsregeln zu orientieren. Diese komplizierten Regelwerke führten zu bestimmten Schiffstypen, die bei der Vermessung günstiger abschnitten als andere und kleinere Raumgehalte möglich machten. Für die Reeder hatte dies Vorteile bei den Hafen- und Kanalgebühren (Suezkanal) oder auch bei den Versicherungspolicen. Zum Schiffsmessbrief der „Fürth“ und die mit der Vermessung verbundene Problematik siehe: Die Vermessung der „Fürth“

Schemazeichnung eines sogenannten Welldeckers; aus: Klassischer Schiffbau der Vorkriegszeit, Heinrich Herner, Salzwasserverlag; Nachdruck des Originals aus dem Jahr 1926; abgerufen über books.google.fr
Welldecker
Eine dieser vermessungstechnisch günstigen Schiffstypen war der sogenannte Welldecker, wie er auch in der Hagen-Klasse und somit bei der „Fürth“ umgesetzt wurde.
Der Name Welldecker leitet sich vom englischen Wort für Brunnen („well“) ab und weist auf das niedrigere Deck im Vorschiff hin, dass gegenüber dem Oberdeck abgesenkt war. Hier befand sich die Ladeluke 1.
Ein wesentlicher Grund für diese Bauform lag in der günstigen Vermessung:
Da der Welldecker wegen der großen Aufbaulänge sehr günstig vermessen werden kann, wendet man diesen Typ auch bei großen Schiffen für atlantische Fahrt an.
Quelle: Klassischer Schiffbau der Vorkriegszeit, Heinrich Herner, Salzwasserverlag; leicht abgeänderter Nachdruck des Originals (1926); abgerufen über books.google.fr
Von den Seeleuten wurde der abgesenkte Bereich mit der Ladeluke 1 auch als „Versaufloch“ bezeichnet. Bei schwerer See sammelte sich in diesem Bereich das Wasser, bevor es wieder ins Meer zurücklief.
Dieses „Versaufloch“ hat sich auf vielen Küstenmotorschiffen („KÜMOS“) bis etwa in die sechziger Jahre des 20. Jahrhunderts hinein erhalten, auf modernen Schiffen findet man es nicht mehr.

Auf diesem Bild ist das „Versaufloch“ rechts neben dem vorderen Mast gut zu erkennen; mit freundlicher Genehmigung des © Maritime Museum of Tasmania, Cyril Smith Collection vol. 11., https://ehive.com/collections/3906/objects/842355/reichenbach

Generalplan der „Reichenbach“, einem Schwesterschiff der „Fürth“, © mit freundlicher Genehmigung des Schifffahrtsmuseums Flensburg (Ref. FSG_267).
Der Aufbau des Schiffes
Die „Fürth“ und ihre Schwesterschiffe hatten fünf Ladeluken. Zwischen Luke 1 und 2 sowie zwischen Luke 4 und 5 befanden sich die beiden Masten mit den Ladebäumen. Die Tragfähigkeit eines Ladebaums betrug 5 Tonnen, am vorderen Mast befand sich zusätzlich ein Schwergutladebaum für Lasten bis 15 Tonnen.
Auf dem Aufriss sieht man sehr schön auch die Besegelung mit vier Stützsegeln zur Abwetterung von Schwerwetter. Siehe dazu den Beitrag Tagebuch (11): Die „Fürth“ in den Roaring Forties und den fachkundigen Kommentar dazu.
Charakteristisch für den Schiffstyp war die Trennung von Brücken- und Maschinenhaus. Zwischen beiden lag eine weitere Ladeluke (Luke 3). Auf langen Fahrten ohne Landberührung diente der darunterliegende Laderaum 3 als Reservebunker für die Lagerung zusätzlicher Bunkerkohlen (1720 Tonnen), die nicht von den festen Bunkern (Kapazität 500 Tonnen) aufgenommen werden konnten.
Vor der Maschine konnte Fracht auf vier Ebenen untergebracht werden, in der Zeichnung von oben nach unten „Brücke“, „Zwischendeck“, „Unterdeck“ und „Raum“ bezeichnet. Alle Raumangaben sind in Kubikfuß (C.F.) notiert, alle Längenangaben in Fuß und Zoll.
Im hinteren Schiffsteil wurde der Raum über dem Doppelboden von der langen Welle zwischen Maschine und Ruder eingenommen, es gab ein Deck weniger. Die Decks sind auf der Zeichnung als „Poop“, „Zwischendeck“ und „Raum“ beschriftet.
Zusätzlichen Lagerraum bot die Vor- und die Achterpiek am Bug bzw. Heck des Schiffes. Diese Lagermöglichkeiten sind in der Zeichnung als „Stores“ benannt. In der Afterpiek lagen zusätzlich Öl-, Post- und Proviantraum (Anmerkung: der Ölraum ist auf dem Plan als Probekammer bezeichnet).
Im als Doppelboden konstruierten Schiffsboden sind Tanks für Frisch- und Ballastwasser eingebaut.
Die Mannschaftsräume befanden sich im Bug des Schiffes unter der Back, die Matrosen auf der Steuerbord- und die Heizer auf der Backbordseite. Zur Unterbringung der Mannschaft folgt ein eigener Artikel.
Kapitän, Offiziere und Stewards waren im Brückenhaus untergebracht. Die Kapitänskammer hatte ich bereits beschrieben. Dampfschiff „Fürth“: In der Kapitänskajüte. Vor der Kapitänskammer lag der Kartenraum und vor diesem der Steuerraum. Darunter lagen der Salon und eine Pantry sowie die Unterkünfte von Offizieren und Stewards und ein Sanitätsraum.
Anmerkung: Der mit Verwalter bezeichnete Raum dürfte von einem der Offiziere genutzt worden sein. Es sind nur drei Offizierskammern im Plan eingezeichnet, an Bord waren aber vier Offiziere (nach Harms 1933 ab dem Jahr 1904).

Generalplan der „Reichenbach“, einem Schwesterschiff der „Fürth“, Ausschnitt Peil- und Brückendeck, © mit freundlicher Genehmigung des Schifffahrtsmuseums Flensburg (Ref. FSG_267).
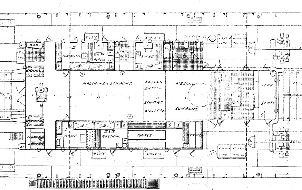
Die Unterkünfte der Maschinisten und Köche lagen im Maschinenhaus. Dort befand sich auch Küche, Werkstatt, zwei Lampenräume, die Messe und Pantry der Maschinisten sowie Bäder und WCs. An den Seiten des Maschinenhauses befanden sich die Öffnungen für das Bunkern von Kohle.
Am unteren Bildrand ist die Gangway zum Betreten und Verlassen des Schiffes erkennbar.

Generalplan der „Reichenbach“, einem Schwesterschiff der „Fürth“, Ausschnitt Maschinenhaus, © mit freundlicher Genehmigung des Schifffahrtsmuseums Flensburg (Ref. FSG_267).
Die vielen Halbkreise auf dem Hauptdeck zeigen die Lage der Lüfterköpfe an. Weiterhin sind an Deck die Dampfwinden zu erkennen (4 pro Mast plus zwei weitere seitlich an Luke 3); die beiden Ankerwinden auf der Back und eine Verholwinde auf dem Achterschiff.
Sicher kann man den Zeichnungen noch weitere Details entnehmen, ich will es allerdings bei den genannten Punkten belassen.
Modellbauer gesucht
Die Pläne der „Fürth“ beziehungsweise von zwei ihrer identischen Schwesterschiffe sind also noch vorhanden, jetzt fehlt nur noch ein erfahrener und begeisterter Modellbauer, der solch ein schönes Handelsschiff der Kaiserlich Deutschen Handelsmarine nachbauen möchte!
Die Geschichte der beiden gezeigten Schwesterschiffe finden Sie hier:
Schwesterschiffe der „Fürth“: Die „Neumünster“
Schwesterschiffe der „Fürth“: Die „Reichenbach“
























